Edifíco de Uso Misto - Itaporanga/PB




.
Situado no sertão paraibano, no município de Itaporanga à cerca de 400km da capital João Pessoa, este edifício combina uso comercial no térreo e habitação multifamiliar no pavimento superior.
O projeto busca atender o anseio do proprietário de unir, em um mesmo edifício, comércio de depósito de bebidas e apartamentos para aluguel. O programa de necessidades incomum foi traduzido de forma a não conflitar os acessos e conforto dos usuários dos apartamentos, além de permitir uma máxima ocupação possível no térreo, favorecido pela flexível legislação local.
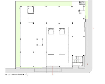
Desta forma, neste piso se encontra um vão aberto com mínimo de pilares possível favorável ao estoque de bebidas, graças ao uso da laje nervurada que foi a mais indicada para este caso, pois possibilitou vãos acima de 6m e espaços livres previsto pelo programa.
O acesso ao depósito se dá ora pelo portão corrediço de 5,50m de altura devido à entrada de caminhões com cargas empilhadas, ora pelo portão com chapas metálicas para entrada social.
Marcando a esquina e sinalizando com a cor vermelha encontra-se a entrada aos apartamentos, encimada por uma sutil marquise de concreto armado, e pintada de branca, aspecto cromático, aliás, que prevalece em toda arquitetura. Volumetricamente, a edificação é formada por sólidos prismáticos horizontais, com predominância de cheios sobre vazios, enfatizando a materialidade arquitetônica.
O bloco superior avança em relação ao passeio público denotando mais leveza e movimento ao corpo edificado e o pavimento térreo é marcado com o tratamento de base pela cor grafite.
A busca pela contemporaneidade é evidente tanto nas linhas retas e horizontalidade da edificação quanto no uso de chapas metálicas e fechamento em policarbonato do portão de 5,50m para entrada de caminhões. O sotaque regional se dá pelo uso do painel de elementos vazados tipicamente paraibano, aplicado estrategicamente no bloco caiado de branco sobre reboco rústico da esquina, alusão aos casebres do entorno local.
Neste mesmo volume e arrematando a composição, duas vigas abraçam o vazio e provoca sombras variadas nas superfícies brancas do edifício e do citado painel de elementos vazados.
Desta forma, neste piso se encontra um vão aberto com mínimo de pilares possível favorável ao estoque de bebidas, graças ao uso da laje nervurada que foi a mais indicada para este caso, pois possibilitou vãos acima de 6m e espaços livres previsto pelo programa.
O acesso ao depósito se dá ora pelo portão corrediço de 5,50m de altura devido à entrada de caminhões com cargas empilhadas, ora pelo portão com chapas metálicas para entrada social.
Marcando a esquina e sinalizando com a cor vermelha encontra-se a entrada aos apartamentos, encimada por uma sutil marquise de concreto armado, e pintada de branca, aspecto cromático, aliás, que prevalece em toda arquitetura. Volumetricamente, a edificação é formada por sólidos prismáticos horizontais, com predominância de cheios sobre vazios, enfatizando a materialidade arquitetônica.
O bloco superior avança em relação ao passeio público denotando mais leveza e movimento ao corpo edificado e o pavimento térreo é marcado com o tratamento de base pela cor grafite.
A busca pela contemporaneidade é evidente tanto nas linhas retas e horizontalidade da edificação quanto no uso de chapas metálicas e fechamento em policarbonato do portão de 5,50m para entrada de caminhões. O sotaque regional se dá pelo uso do painel de elementos vazados tipicamente paraibano, aplicado estrategicamente no bloco caiado de branco sobre reboco rústico da esquina, alusão aos casebres do entorno local.
Neste mesmo volume e arrematando a composição, duas vigas abraçam o vazio e provoca sombras variadas nas superfícies brancas do edifício e do citado painel de elementos vazados.
.
Ficha técnica
.
Local: Itaporanga-PB
Área de construção: 1157.52m²
Ano do projeto: DEZ 2007
Arquitetura: Marco Suassuna
Maquete Eletrônica: Alexandre Suassuna
Local: Itaporanga-PB
Área de construção: 1157.52m²
Ano do projeto: DEZ 2007
Arquitetura: Marco Suassuna
Maquete Eletrônica: Alexandre Suassuna





Lindo edificil.
ResponderExcluirParabéns!!!